Autorisations d'urbanisme
L’agence vous accompagne dans toutes vos démarches d’autorisations d’urbanisme, qu’il s’agisse d’une déclaration préalable (DP), d’un permis de construire (PC pour une surface inférieure à 150 m²), ou d’un permis d’aménager (PA).
Notre agence vous accompagne à chaque étape de votre projet d’aménagement ou de construction, en assurant la prise en charge complète des démarches liées aux autorisations d’urbanisme. Qu’il s’agisse d’une déclaration préalable, d’un permis de construire ou d’un permis d’aménager, nous mettons notre expertise au service de la réussite de votre dossier.
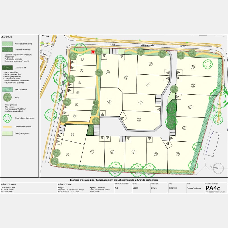
Nous réalisons l’ensemble des pièces nécessaires à la constitution d’un dossier conforme aux exigences réglementaires :
– Plans détaillés (plan de masse, plan de situation, façades, coupes, etc.)
– Photomontages et documents graphiques d’insertion pour visualiser l’intégration du projet dans son environnement
– Formulaires CERFA complétés avec précision
– Note explicative ou notice descriptive, selon les besoins du dossier
Grâce à notre maîtrise des exigences administratives et notre connaissance fine du territoire, nous facilitons l’obtention de vos autorisations.

















































